Mala Vas, Ljubljana (Bežigrad)
Naprodaj je sodoben dvojček z lastnim atrijem na prijetni in mirni lokaciji v Mali vasi za Bežigradom. Lokacija je odmaknjena od mestnega vrveža, hkrati pa omogoča hitro dostopnost do vse potrebne infrastrukture v neposredni bližini.
Objekt obsega 168,2 m² funkcionalne bivalne površine ter dve parkirni mesti.
Hiša se prodaja do III. podaljšane gradbene faze, kar vključuje konstrukcijo objekta, streho, okna, fasado ter komunalne priključke do objekta.
V ceno so vključeni tudi arhitekturno svetovanje, projekt notranjega oblikovanja ter PZI in PID dokumentacija z vodenjem postopka za pridobitev uporabnega dovoljenja.
OSNOVNI PODATKI
Objekt je zasnovan kot dvojček z atrijem v mirni soseski.
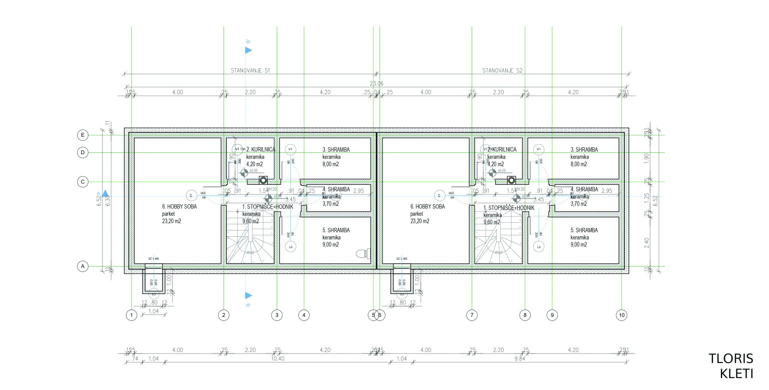
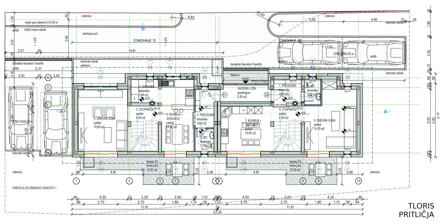
Neto notranja površina: 168,2 m²
– klet: 58,1 m²
– pritličje: 55,8 m²
– nadstropje: 54,3 m²Atrij: 13,3 m²
Neto notranja + zunanja površina: 181,5 m²
Parkiranje: 2 zunanji parkirni mesti
Pošlji povpraševanje
Neposreden kontakt
Aleš — 041 612 368
Matic — 031 272 312
Zakaj stopiti v stik?
– možen ogled po dogovoru
– arhitekturno svetovanje vključeno
MOŽNOST NAKUPA
III. podaljšana gradbena faza
510.000 € z DDV
Vključeno v ceno:
- izvedba objekta do III. podaljšane gradbene faze
- komunalni priključki do objekta (voda, elektrika, kanalizacija)
- arhitekturno svetovanje
- PZI in PID dokumentacija (vodenje postopka za pridobitev uporabnega dovoljenja)
- idejna zasnova notranjega oblikovanja
- fotorealistične 3D vizualizacije prostorov












